Tunnel platform Robinio 6808

€0.00

A wooden playground tunnel designed for crawling and movement in public outdoor play areas.

Purpose
This tunnel platform is designed for children aged 3 to 14 years and supports crawling, coordinated movement, and shared play. Moving through the tunnel helps strengthen arm and leg muscles while also providing a sheltered space where children can rest and relax during active outdoor play, accommodating up to four users at a time.

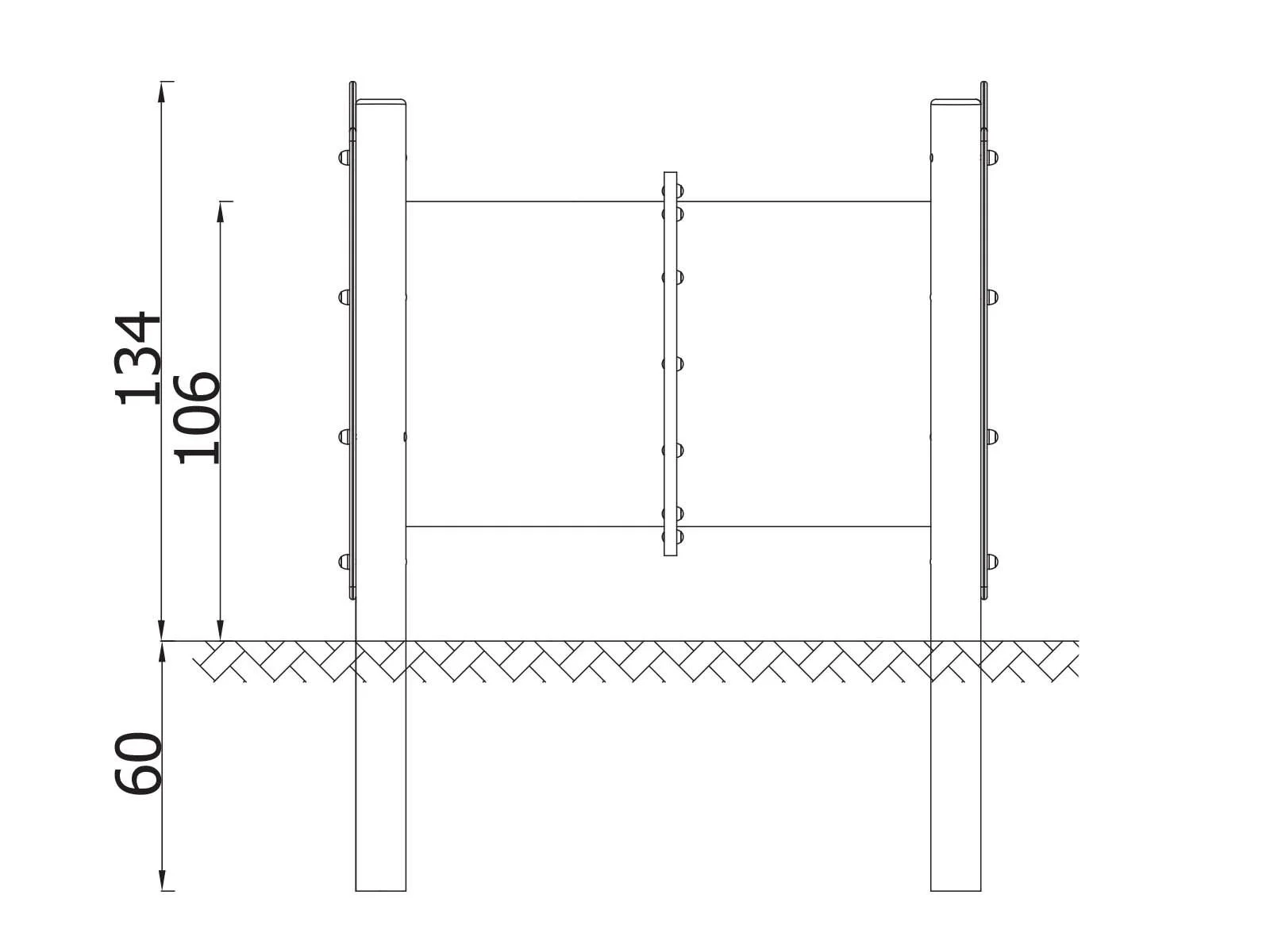
Dimensions & Technical Data

  • Length: 1.20 m

  • Width: 1.59 m

  • Height: 1.34 m

  • Maximum fall height: 1.06 m

  • User age range: 3–14 years

  • Number of users: 4

Materials & Construction

  • Support posts made of acacia wood

  • Panels made of high density polyethylene

  • Tunnel made of PE plastic

  • Additional elements made of non-slip high density polyethylene

  • Weather-resistant and UV-resistant connectors and fittings

  • Anchored directly into the ground

Equipment List

  • 1× tunnel

Safety & Standards

  • Complies with EN 1176-1+A1:2024-03

End

A wooden playground tunnel designed for crawling and movement in public outdoor play areas.

Purpose
This tunnel platform is designed for children aged 3 to 14 years and supports crawling, coordinated movement, and shared play. Moving through the tunnel helps strengthen arm and leg muscles while also providing a sheltered space where children can rest and relax during active outdoor play, accommodating up to four users at a time.

Dimensions & Technical Data

  • Length: 1.20 m

  • Width: 1.59 m

  • Height: 1.34 m

  • Maximum fall height: 1.06 m

  • User age range: 3–14 years

  • Number of users: 4

Materials & Construction

  • Support posts made of acacia wood

  • Panels made of high density polyethylene

  • Tunnel made of PE plastic

  • Additional elements made of non-slip high density polyethylene

  • Weather-resistant and UV-resistant connectors and fittings

  • Anchored directly into the ground

Equipment List

  • 1× tunnel

Safety & Standards

  • Complies with EN 1176-1+A1:2024-03

End

Download Technical Documentation For Tunnel platform Robinio
The technical card and top-view DWG file provide key dimensions and layout information for architectural and landscape planning.

Technical card
Top View DWG file
Assembly instructions